住宅内装とリフォーム『株式会社サンユー』の提案型リフォームです。

  • ホーム 個人のお客様へ 店舗など・商用のお客様へ リフォームまでの流れ 実績紹介 会社概要

      >> 具体例はこちら <<  

     
    ・構造・内装・設備などが老朽化したから…
    ・間取りや水回りなどの使い勝手を改善したい…
    ・老後のために暮らしやすい住まいにしたくて…
    ・結婚や親との同居などで家族が増えるから…
    ・子供の独立で同居人数が減ったから…
    ・どのレベルまでバリアフリーすればいいのか…
    ・店舗の内装あるいは居抜きのお店を改装したい…等々
     

     
    「安いだけでは困る。デザイン性や質感も欲しいし、もちろん機能性無いとダメだし・・・でも高いのも困る。」
    ご予算・デザイン・性能・機能・工期などお客様のご希望をお聞きし、お客様の考える優先順位と方針に沿った最適なリフォームプランをご提案させていただきます。
    低予算重視のお客様、デザイン重視のお客様、機能重視のお客様など様々な条件に対応いたします!
     

     
    経験と研究を重ねるプロならではのプランをご用意します。
    照明だけでガラリと雰囲気を変えたり、間仕切り壁を取り払い解放感溢れる大型リビングにしたり、造作して“魅せるお店”へと変貌させたりと、デザインから造作まで一手に手掛けるサンユーがお客様に合ったリフォームプランをご提案いたします!!

    たとえば、"システム手帳"を思い浮かべてみてください…
    名刺ポケットを加えたり、カレンダーページを月間から週間のものに変えたり、アドレスページを減らしてメモページを増やしたり、etc。…用途やお好みに合わせて組合せを自由自在にカスタマイズ出来るのが"システム手帳"です。
    これをリフォームに置き換え、当社がお客様のご要望(=用途やお好み)を実現するプラン(=組合せ)をご提案させていただきます。

     


     
    ●施工前
    ●施工後
    ●お見積書
    ●飲食店のトイレ
    お客様は、営業10年の飲食店様。
    お悩みは、トイレの汚れと匂いがひどいこと。

    タイルと便座の改善策についてご提案致しました。
    (1)タイルには日々の掃除で落ちない汚れ。
    日程の関係上、新品のタイル貼替えは出 来ないため特殊な洗浄剤によるクリーニングをご提案いたしました。

    (2)便座と便器の間には長年蓄積された尿石が相当こびり付いており、見た目も悪 く、匂いの原因にもなっていました。従来の便座は便器との接合部分に掃除の手が及 びにくいため、汚れを完全に取り除くのが難しいものです。そこで、今後は隅々ま での掃除が簡単な『脱臭機能付のワンタッチ着脱式便座』をご提案いたしました。
     
     
    ●ご依頼物件の図面拡大版は画像をクリック
    ●ご提案図面拡大版は画像をクリック
    ●お見積書
    PDFで表示

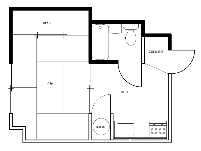
    ●築31年の1DKマンション(賃貸用)
    お客様は、某不動産管理会社様。
    ご要望は、新規入居者を獲得できる魅力ある物件にリフォームすること。

    ●賃貸時の家賃設定なども考慮した上、2つのポイントをご提案致しました。
    (1)
    ユニットバスを"3点式(お風呂、洗面台、トイレ)"から"2点式(お風呂、洗面台)"に変更しすること。風呂・トイレ別々タイプの物件が圧倒的に人気なため、トイレの独立スペースとして電気温水器の設置場所を改装するご提案をしました。

    (2)
    和室から洋室に変更すること。
    押入れをクローゼットに変更するなど完全洋室へのリフォームはコスト的に難しいと判断して、入居者にフローリングの人気があることを考慮して畳からフローリングへの変更をご提案しました。
     
     

    ホーム  個人のお客様へ  店舗など・商用のお客様へ  リフォームまでの流れ  
    実績紹介  会社概要・個人情報保護方針 部分型リフォーム 提案型リフォーム 差がつくバリアフリー住宅 
    お客様の声
     リフォーム無料相談・リフォーム見積り依頼サイトマップ ワンポイントコラム&豆知識 ブログ リンク
    Copyrightc 2010 株式会社サンユー All Rights Reserved.